Projects
New and Current Projects
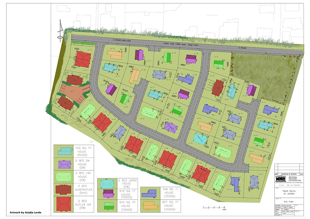
The National Housing Corporation takes pride in a rich portfolio of completed projects that have positively shaped the housing landscape in Barbados. Our projects range from innovative real estate developments and the construction of modern, comfortable homes in collaboration with our Joint Venture partners to the efficient management of properties and expertly handled legal and project management services. These endeavours reflect our unwavering commitment to providing affordable and quality housing solutions for the benefit of the community. Our aim is to continue to make a lasting impact by creating thriving communities and shaping the future of housing in Barbados.










































































































































